05.12.2018 13:25

Над 60 сгради застрояват само в Младост 1А, небостъргач и 3 14-етажни в задушения без друго Изток

Видян 5969 пъти | Коментари 0
Гласували 8 рейтинг: 2.1250
много слаба слаба добра много добра страхотна

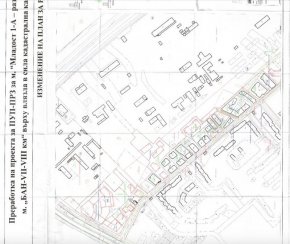
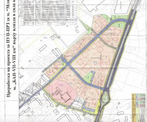
„На прага сме на гигантско застояване с над 60 (ШЕСТДЕСЕТ) нови сгради, като част от план за разширение на Младост 1А. Почти всички нови сгради имат предназначение "за жилищно строителство" и ще бъдат разположени в две зони - на север от ул. Ана Ахматова в посока бул. Цариградско шосе и на изток от ул. Ресен в посока Горубляне. Повечето блокове ще бъдат 10-етажни.


До 19-ТИ ДЕКЕМВРИ (19.12.2018г.) всички заинтересовани лица, живеещи в съседните блокове в Младост 1А, могат да правят писмени възражения, предложения и искания по проекта до Главния архитект на Столичната община чрез район Младост. Ние приканваме всички жители на Младост да пишат възражения срещу този проект!


Представянето на проекта ще се състои на 06.12.2018г. от 18.00 часа в Народно читалище Младост 1971 с адрес: София, ж.к. Младост-1 (до кооперативния пазар).



Няма предвидена нито една нова детска градина, нито едно ново училище


 Разширяването на бул. Копенхаген е само на снимка и няма никакви гаранции, че ще бъде доизграден. Наличието на неизграден булевард, както и представянето на бул. Ал. Малинов като 10-лентов на хартия – това е най-задръстената пътна артерия в града с 4 до 6 ленти в двете посоки, но по една е бус, т.е. са по платно в по-голямата част, е само оправдание за допускането на това огромно застрояване.



Предвидени са много сгради, които дори нямат достъп до улица


Ще се строи на практика жилищен квартал върху зона, която не е жилищна и с по-високи градоустройствени показатели. Не е ясно какъв градски транспорт ще обслужва тези над 60 нови сгради. Къде ще учат и ходят на детска градина децата на новодомците?!?


Натоварването върху пътните артерии ще се увеличи неимоверно много, превръщайки живота на над 100 хиляди жители в ад. Няма да има достатъчно места в детските градини, училищата, поликлиниките и другите обществени учреждения.


Линкове към плановете:


http://mladost.bg/wp-content/uploads/2018/11/22112018-2.pdf


http://mladost.bg/wp-conte…/…/2018/11/070955scan22112018.pdf


Какво ще стане с квартала, когато достигне предела на възможното застрояване и животът тук стане истински непоносим?


Щом урбанистичният идиотизъм бъде развит в пълнота, това място ще се превърне в ад под небето, лишена от градоустройствен смисъл територия, която ще служи за пример какво се получава там, където властва алчността, безцеремонното и презрително отношение към градската среда. Ще го допуснем ли?”, пише във Фейсбука си арестуваната без нито едно доказателство идържана вече осми месец в ареста екскмет на Младост Десислава Иванчева.


В същото време от заседанията на ресорните комисии в СОС се разбра и друга „радостна” вест за презастрояване, предадена от присъствалата там гражданска активистка Гергана Пирозова. Този път за квартала, където финансовият министър Горанов избяга от земетресението в Перник – престижния Изток. За  десетина години зелената махала с чудни стари къщи се обърна на бетонова джунгла и отдавна се задушава. Но небостъргач с височина 60 м и 3 високи сгради по 14 етажа са одобрени за изграждане там без необходимия по закон анализ на трафика, без анализ на достъпа до транспорт, но с „научна рецензия”, за да продължат строежите, които са започнали хей тъй на, понеже явно хората са с връзки. Що за наглост и безочие???!!!





Добави в:

Facebook facebook.com

19min.media си запазва правото да изтрива коментари, които не спазват добрия тон.

Толерира се използването на кирилица.

Няма коментари към тази новина !

RSS

Най-нови

реклама

към тв програма тв програма

бТВ Екшън 22 февруари 21:00ч.

Отново на 17 2009 г. ‧ Комедия/Фентъзи ‧ 1 ч 42 мин

Режисьор: Бър Стиърс (Burr Steers)
В ролите: Зак Ефрон Майк О'Донъл Матю Пери (Майк О'Донъл) Матю Пери Майк О'Донъл Лесли Ман (Скарлет) Лесли Ман Скарлет Томас Ленън (Нед) Томас Ленън

виц на деня

Разговор между богаташ и новата му руса любовница:
- Миличка, трябва да ти призная нещо. Женен съм.
- Ох, така ме изплаши! Помислих, че яхтата не е твоя…

към хороскоп хороскоп

водолей